Liège – Bien d’exception à vendre – 1 050 000€
Présentation
Cette prestigieuse maison de maître de 1926 incarne la noblesse et l’élégance du patrimoine liégeois.
Développant près de 680 m2 habitables, cette demeure exceptionnelle s’étend sur cinq niveaux.
Les cheminées en marbre, les plafonds moulurés et les escaliers en chêne soulignent le caractère noble de la propriété.
Les trois pièces de séjour réparties sur les étages, offrent des espaces de réception lumineux et chaleureux, parfaits pour au besoin, conjuguer vie privée et vie professionnelle.
Un vaste espace cuisine à rénover complète le rez-de-chaussée.
Deux espaces extérieurs – un patio de 16 m2 et une terrasse de 36 m2 – ainsi qu’un garage viennent parfaire cet ensemble rare.
Cette propriété nécessite quelque travaux : mise en conformité de l’électricité, salles de bains, cuisine, vitrages... Une fois réaménagée, elle retrouvera tout son éclat et offrira un cadre de vie prestigieux dans l’un des quartiers les plus recherchés de Liège.
Pour tout renseignement et pour organiser une visite, contactez l’agence Welcome At Home au 0474 500 501 ou par e-mail sur info@welcomeathome.be
PEB E – 380 kWh/m2 .an – 258.416 kWh/an – n°20210915004285
Description
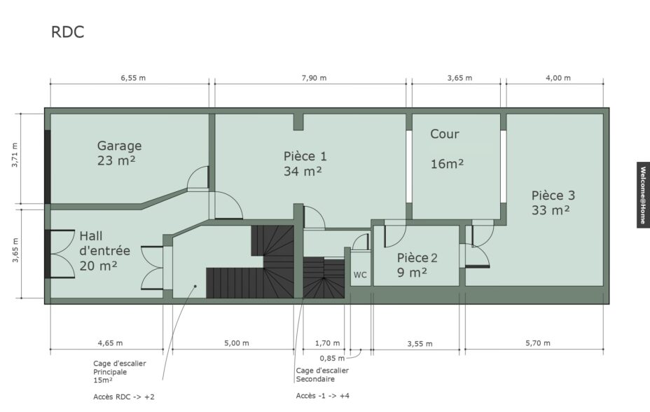
Rez-de-chaussée :
- Hall d’entrée
- Garage
- Pièce polyvalente 1
- Pièce polyvalente 2
- Pièce polyvalente 3
- Cour intérieure
- WC
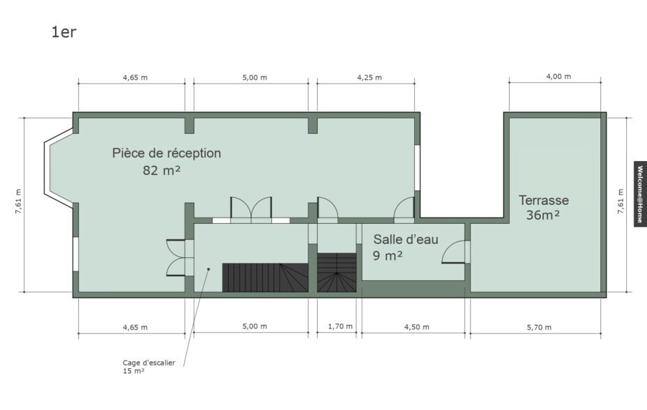
1er étage :
- Grande pièce de réception
- Salle d’eau
- Terrasse
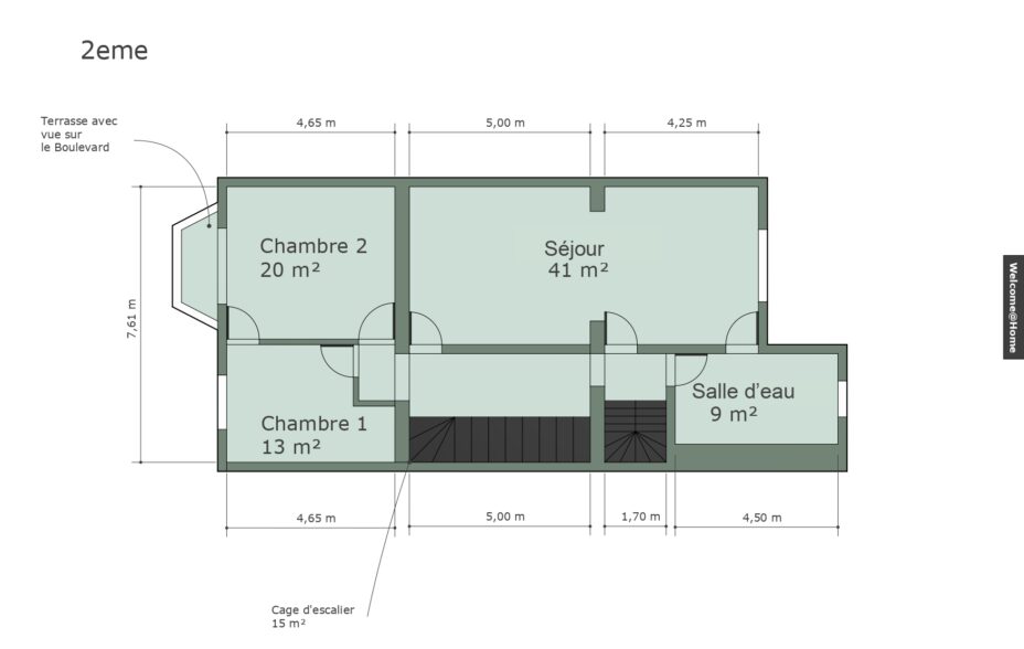
2e étage :
- Chambre 1
- Chambre 2
- Séjour
- Salle d’eau
3e étage :
- Hall de nuit
- Chambre 3
- Chambre 4
- Séjour
- Salle d’eau
Grenier :
- Chambre 5
- Chambre 6
- Chambre 7
- Salle d’eau
Vous allez apprécier...
- La situation dans un quartier central calme, tout en étant proche du centre-ville
- Proche de la gare des Guillemins
- La grande pièce de réception lumineuse de 82m2 avec cheminées en marbre
- Les deux autres salons pour une grande flexibilité d’utilisation
- Le grand espace au rez-de-chaussée à aménager en cuisine ou autre
- Les matériaux nobles qui ont été préservés
- La présence de 2 escaliers
- La vue dégagée sur Boulevard Piercot et la proximité du Parc d’Avroy
- La cour intérieure de 16m2 ainsi que la terrasse de 36m2
- Le garage fermé
- La proximité du tram, facilitant les déplacements en ville
- Les commerces, écoles et services accessibles facilement
- Le fort potentiel d’aménagements selon vos envies
Localisation
Nichée sur le Boulevard Piercot dans un lieu arboré parmi les plus prisés du centre de Liège, cette maison de maître située en face du conservatoire, bénéficie d’un emplacement privilégié entre le parc d’Avroy et le quartier des Terrasses.
Facile d’accès, proche des arrêts de tram, des écoles et de toutes commodités, elle offre un cadre de vie calme, idéal pour les familles et les professions libérales
Vous désirez plus d'informations ou convenir d'une visite ? Contactez-nous !




























